上海徐汇服务式公寓-西岸中环汇服务式公寓
滨江之上 · 都会精英的静谧居所
徐汇滨江核心的国际化都会居所
西岸中环汇服务式公寓,位于上海徐汇滨江核心地段,于 2023年12月正式启幕,由香港置地匠心打造。项目以国际高端服务式公寓标准,融合当代设计美学与人性化居住理念,为城市菁英呈现一处兼具江景资源、生活品质与都市效率的理想居所。
在这里,居住不再只是空间的延展,而是一种关于秩序、舒适与审美并存的滨水生活方式。

徐汇滨江轴心,链接全城精华
项目坐落于徐汇滨江西岸板块,一线临江,城市人文与自然景观交汇:
• 步行可达星美术馆、西岸艺术与文化设施
• 便捷通达徐家汇、衡复风貌区、新天地、前滩
• 邻近 7/12号线龙华中路站,约1公里
• 紧邻内环高架路、打浦桥隧道,快速连接浦西浦东
徐汇滨江作为上海近年来重点发展的高端居住与文化板块,集艺术、人文、商业与生态于一体,构筑出极具前瞻性的城市生活场景。

建筑|一线江景,纯粹滨水生活
西岸中环汇服务式公寓依托不可复制的徐汇滨江岸线资源,多数房型可直面黄浦江景,视野开阔无遮挡。建筑整体风格克制而现代,强调空间通透感与生活舒适度。
• 户外阳台 / 露台设计,将江景自然引入日常
• 室内动线简洁流畅,兼顾私密与开放
• 民用水电配置,居住成本更优
项目以 静谧、纯粹、低密度的滨水居住氛围,在城市核心中营造出难得的生活留白。

居住价值|城市菁英的滨江生活样本
西岸中环汇服务式公寓,尤其适合:
• 外资企业高管与驻沪商务人士
• 崇尚生活品质与景观价值的城市精英
• 艺术、文化、金融等高端职业人群
• 寻求宠物友好、长期稳定居住方案的住客
这里不仅是居所,更是徐汇滨江生活方式的理想载体 —— 在江水、艺术与城市节奏之间,找到属于自己的从容与秩序。

公寓信息
开业时间: 2023年12月份
机场距离: 虹桥机场15km、浦东机场43km

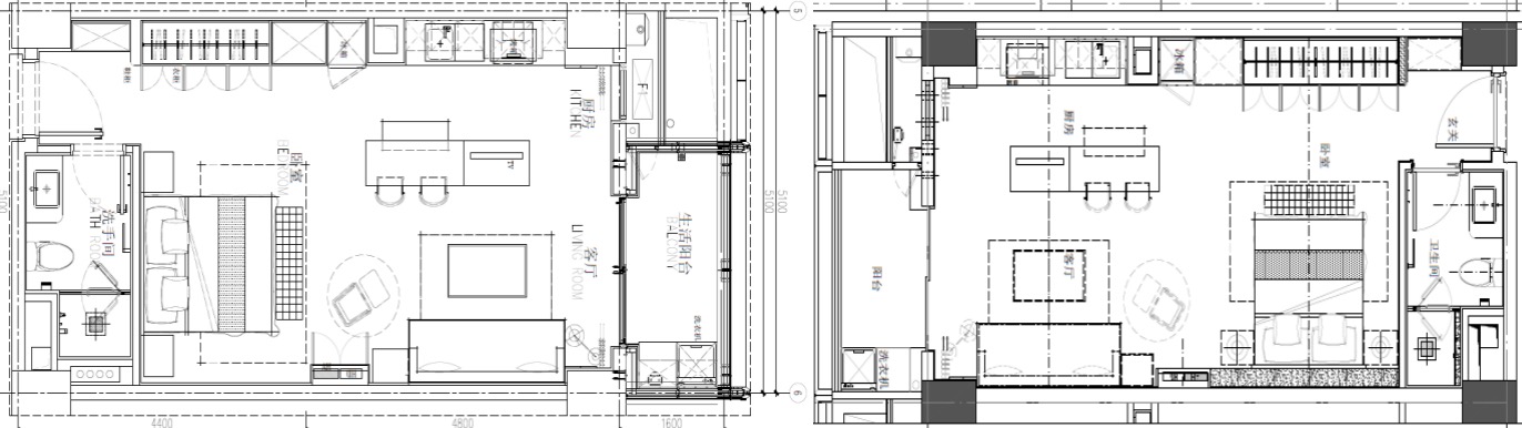
户型|多元选择,精致而实用
公寓提供多种户型选择,满足单身菁英、商务人士及高端家庭的多元居住需求。所有房型均为全新装修,家具家电齐备,可拎包入住。
西岸中环汇服务式公寓价格表:
房型 面积(M²) 年租月租金
单房 Studio 66 1.4-1.7万
一房 83/87 1.8-2.6万
两房 127 3.5-5.0万
西岸中环汇服务式公寓出租电话:15921786368
单房Studio 66平米



一房 83/87平米




两房 127平米




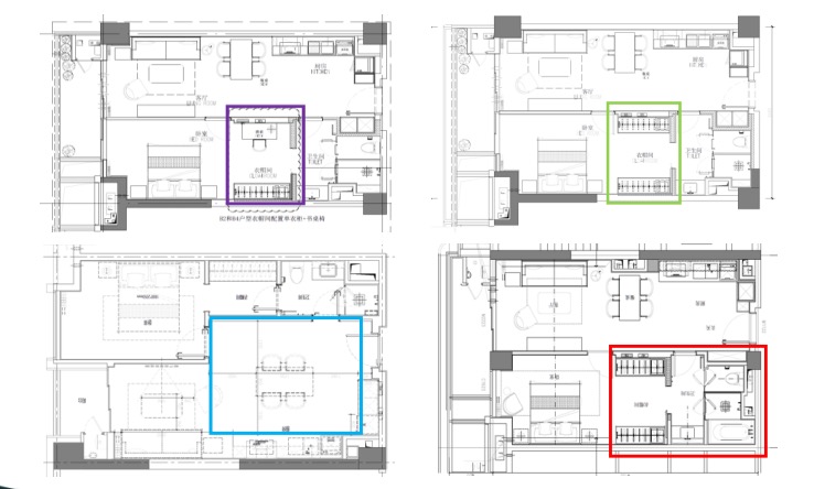
空间设计亮点
• 开放式厨房配置齐全:
电磁炉 / 微波炉 / 烤箱 / 洗碗机 / 冰箱
• 日立独立中央空调 + 地暖系统
• 洗烘一体机,生活高效便捷
• 舒达(Serta)品牌床垫(150×200 / 180×200)
高端家电与卫浴
• 华为 55/65 寸智能电视
• BOSE 高品质音响系统
• Blueair 空气净化器
• 科勒卫浴及卫洗丽配置

配套与服务|品质细节,恰到好处
公寓服务
• 每周一次室内清洁及布草更换(增值服务)
• 24小时安保系统
• 地下车位充足,含部分新能源充电桩
公共与增值配套
• 国际品牌 24小时自助式健身中心
• 高速独立 300M Wi-Fi
• 宠物友好社区(支持携宠入住)
项目在服务配置上强调 低干扰、高效率,既保留私密性,又兼顾生活便利。
外观
休闲区

健身房

西岸中环汇服务式公寓租金包含:物业、发票、宽带WiFi、24小时健身房及公区使用。
增值服务:每周1次打扫1次换洗布草(1,000元/月)
停车:车位充足(含部分充电桩),1,800元/月 地下灵活车位、2,000元/月 地下固定车位
宠物:宠物友好,一次性清洁费1,000元,宠物押金5,000元/只
水电煤民用收费标准。
西岸中环汇长租公寓租赁咨询
159-2178-6368
info@knowapartments.com



