Huamai Mansion Shanghai
华山路百年风华之上,一种长期居住的城市答案
形成于城市发展早期,伴随成熟的城市肌理、稳定的社区结构,以及长时间沉淀下来的人文气质。
这里连接静安与徐汇,毗邻衡复历史风貌区,既远离过度商业化的喧嚣,又始终处于城市核心半径之内。时间在这里并未被快速消耗,而是转化为稳定、克制而长期的居住价值。
静安公馆服务式公寓,正是在这样的城市语境中诞生——它并非追逐短期热度的项目,而是为真正理解城市、理解生活节奏的人,打造的一处“家外之家”。

时间筛选后的居住选择
相较南京西路、淮海中路等强商业属性板块,华山路更偏向纯粹居住属性。
沿线多为低密度历史建筑、花园住宅及成熟社区,街区尺度舒展,生活氛围安静而稳定。
这类板块的价值,并不来自流量,而来自长期居住者的持续选择。
跨国企业高管、专业人士家庭、长期驻沪的外籍住客,往往在这里完成从“短期停留”到“稳定居住”的转变。
静安公馆,正位于这一传统高端居住带的核心位置,在城市中心极为稀缺的条件下,保留了安静、私密与从容。
Art Deco语境下的建筑新海派表达
项目建筑外观采用法式 Art Deco 风格,线条比例克制而稳重,与华山路沿线历史建筑自然融合,不突兀、不张扬。
室内设计由 DIA 丹健国际操刀,将现代设计语言与老上海气质巧妙融合。
空间不刻意复古,而是在材质、光影与尺度中,营造一种当代语境下的“海派新味”。
作为一栋式独立建筑,项目拥有完整的入户落客区与高尺度公寓大堂,从归家动线开始,便确立了高端私宅式的仪式感,这在市中心服务式公寓中并不多见。

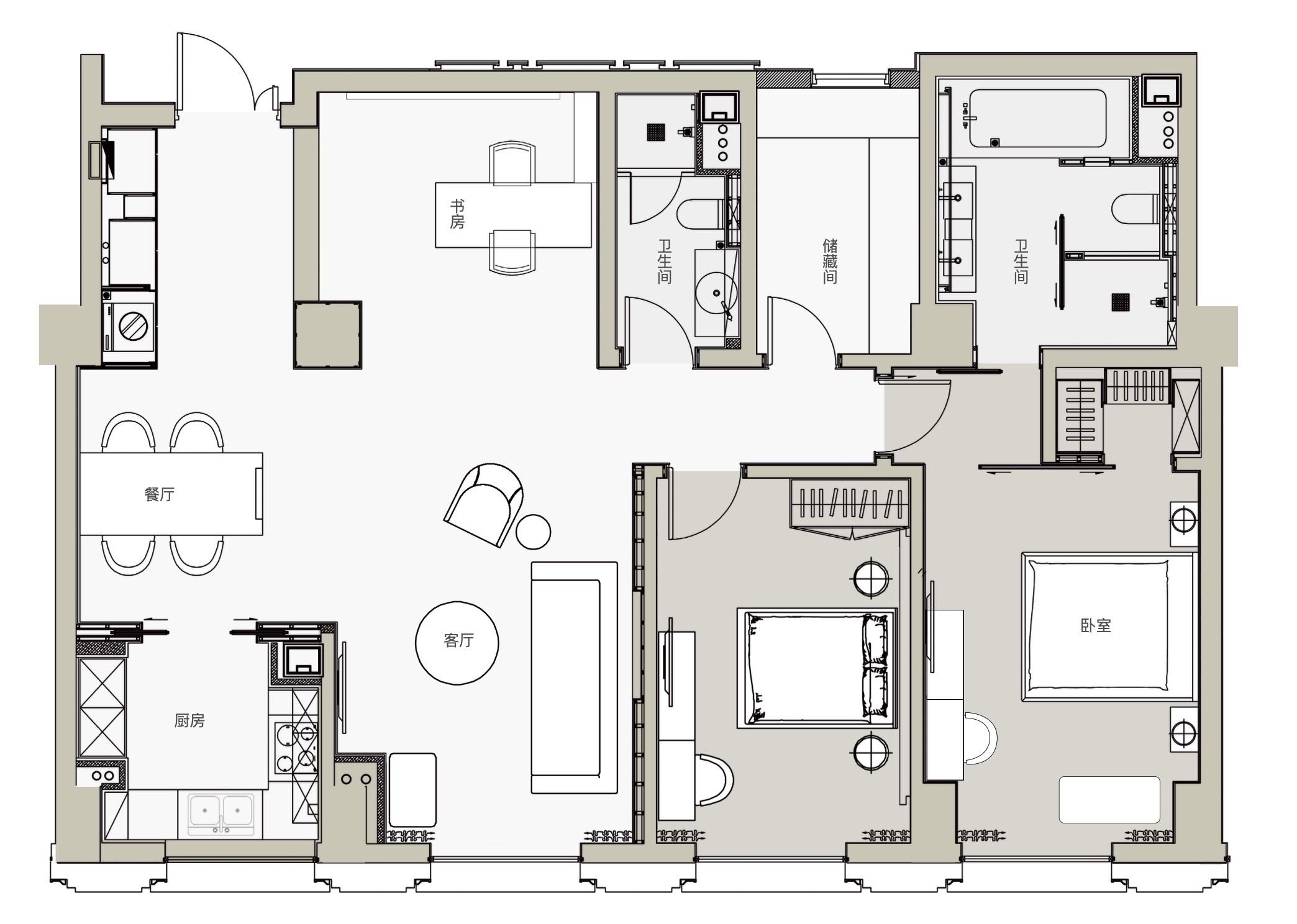
静安公馆服务式公寓 房型价格一览
房型 面积(㎡)月租金(RMB)
三房(23套)165 45,000 – 50,000
四房(46套)252 53,000 – 70,000
静安公馆服务式公寓租赁电话:15921786368
为长期居住而生的大平层格局
静安公馆服务式公寓共规划 69 套高端大面积住宅,全部为三房及四房配置:
在上海市中心,这样的空间尺度极为稀缺。
大开间客厅、完整餐厨体系、南向无遮挡视野,使居住体验更接近高端私宅,而非传统酒店式产品。
多数户型可直面衡复历史风貌区,在城市核心难得保留了开阔视野与安静环境,适合真正长期居住与家庭使用。
三房户型|约 165㎡
165㎡三房户型在华山路板块属于极为稀缺的中大尺度配置,整体空间结构清晰,公私分区明确。客厅与餐厅尺度开阔,南向采光充足,既保证日常居住的舒适性,也能满足小型会客或家庭聚餐需求。
厨房配置完整,适合高频使用而非象征性设计;卧室尺度均衡,其中主卧强调私密性与独立卫浴体验,其余房间可灵活作为次卧、书房或多功能空间使用。
在市中心服务式公寓中,该户型兼顾了空间效率与居住品质,更贴近真实长期生活场景。







适居人群
跨国企业中高层管理者或专业人士
长期驻沪的外籍家庭(1–2名子女)
需要独立书房或居家办公空间的高端商务人士
希望居住在城市核心,但不追求过度冗余面积的人群
四房户型|约 252㎡
252㎡四房户型在上海市中心极为罕见,整体更接近高端私宅大平层标准。空间尺度充裕,公共区域开阔而连贯,南向视野开朗,具备明显的居住仪式感。
多卧室配置使功能分区更为从容,可实现主卧套房、家庭卧室、书房、客房等多种组合方式,既满足家庭长期居住,也适合商务人士在家中完成轻度会客与社交需求。
厨房与储物系统配置完整,整体强调生活秩序与空间弹性,是为“住得久、住得稳”而设计的户型。





适居人群
企业高管、合伙人级别长期驻沪人士
外籍高管家庭或多成员家庭长期居住
对居住私密性、空间尺度有明确要求的人群
需要在居所中兼顾生活、办公与社交功能的客户
居住配置:以“住得久”为标准的硬件体系
项目在配置层面,并未采用短住酒店逻辑,而是完全以长期居住为出发点:
厨房系统
斐雪派克燃气灶
嘉格纳烤箱 & 蒸箱
嘉格纳橱柜一体式冰箱
洗衣系统
东芝洗衣机 & 烘干机
卫浴系统
唯宝(Villeroy & Boch)
汉斯格雅(Hansgrohe)
舒适系统
大金中央空调
丹佛斯全屋地暖
全屋新风系统
整体配置强调稳定性、耐久度与舒适体验,而非展示型奢华。

公共区域与服务体系:克制而完整
公寓公共区域延续整体设计风格,强调私密与实用:
全套 泰诺健(Technogym)设备健身房
24 小时健身空间
高速无线网络
地下停车场(额外收费)
服务内容
每周两次客房清洁
24 小时安保及礼宾
洗衣服务(额外收费)
机场接送(额外收费)
可提供增值税专用发票
服务存在感克制,但始终在线,更贴近高端住宅的长期生活逻辑。

交通体系:中心区的从容效率
步行约 10 分钟抵达地铁 2 / 11 号线江苏路站
步行约 2 分钟抵达 71 路中运量
约 5 分钟车程直达延安高架
约 30 分钟抵达虹桥机场 / 虹桥火车站
约 50 分钟抵达浦东国际机场
在保证居住安静度的同时,维持市中心高效的出行半径。
在华山路这样一条见证过上海百年变迁的街道上,静安华麦公馆服务式公寓并不试图制造喧哗。
它选择以建筑、尺度与时间,对长期居住者作出回应——
为真正理解城市价值的人,留下一处安静而笃定的居所。
静安公馆服务式公寓租赁咨询
159-2178-6368
info@knowapartments.com



