在徐汇内环,如果你正在找一套真正新建、低密度、科技住宅标准的高端服务式公寓,那X8 Managed by Savills Residence,基本已经是“天花板级别”的选择。
由 Savills 第一太平戴维斯负责管理,携手城建集团打造,项目自启幕以来,长期处于高入住率状态,可租房源始终有限。

内环徐汇 · 成熟生活场里的静谧住区
X8服务公寓位于徐汇区徐虹北路,近凯旋路,处于内环内成熟居住板块:
• 步行可达 轨交 3 / 4 / 9 号线 · 宜山路站
• 快速衔接内环高架、延安路高架
• 周边汇集徐家汇商圈、漕河泾商务区、古北国际社区
生活便利与居住私密性兼具,非常适合对通勤效率与生活品质同时有高要求的家庭及外籍高管。

建筑规划|低密度,仅 63 套的高端住区
X8 并非传统“规模型”服务式公寓,而是以精品住宅标准打造的高端租赁产品:
• 2020 年竣工
• 1 幢 23 层高层住宅
• 2 栋独立别墅
• 全项目仅 63 套
户型设计以 一梯一户 / 一梯两户 为主,大幅降低公共干扰,强调居住的私密性与安静度。

科技住宅|“中鹰黑森林”同款系统方案
X8 最大的亮点之一,是其完整引入了科技住宅典范——
「中鹰黑森林」同款绿色建筑系统方案。
这是一个并非“拼配置”,而是系统级整合的居住解决方案:
• 中央空调 + 地暖 + 新风一体式系统
• 国内首批恒温 · 恒湿 · 恒氧 高端服务式公寓
• 增加层高,减少吊顶,室内空间更通透
• 德国旭格(Schüco)90 系列加厚门窗
• 外置电动卷帘系统,一键实现 0 采光
居住感受更接近于高端自住科技住宅,而非传统酒店式公寓。

室内配置|拎包入住
每一套公寓均配置:
• 设计师品牌家具
• 国际品牌电器
• 高品质整体厨房及厨具
• 远超同类项目的储物空间规划
整体风格克制、耐看,适合长住家庭根据生活习惯自由“生长”,而不是短期酒店式居住的模板化配置。

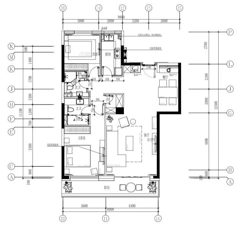
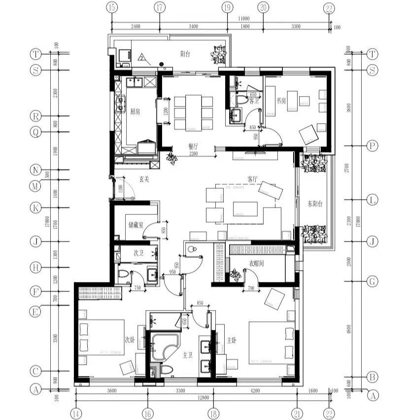
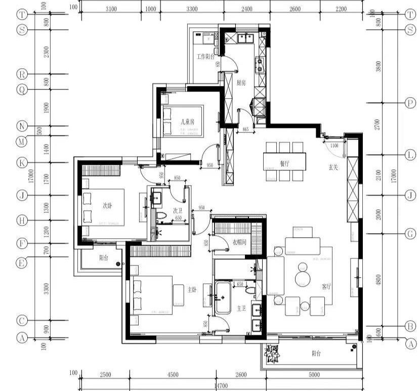
X8服务式公寓户型面积一览:
• 96–105㎡|两房两卫 约 2.5–2.9 万 / 月
• 191–198㎡|2+1 房三卫 约 3.8–5.0 万 / 月
• 195–212㎡|三房两卫 约 4.0–5.6 万 / 月
X8服务式公寓出租电话:15921786368
户型以家庭结构友好为核心,特别适合:
• 外籍高管家庭
• 高端改善型租客
• 对空气质量、安静度要求极高的长期居住人群
两房两卫






2+1 房三卫






三房两卫







租金已包含:
• 物业管理费
• 合规发票
• 宽带 WiFi
• 每周 2 次保洁 + 1 次布草换洗
• 健身房及公共空间使用
• 24 小时安保及客户服务
车位:2500 元 / 月
宠物友好
公区与服务|真正为“住”而设计
公寓采用 Savills Residence 管理体系,服务逻辑偏向长期居住而非酒店式频繁打扰:


X8服务式公寓租赁咨询
159-2178-6368
info@knowapartments.com



