One Of A Kind 736
位于江苏路近华山路,坐拥卓越的地理位置,周边交通便捷,处于上海市中心传统高端豪宅地段。

公寓特色
上海静安公馆服务公寓在2025年开业,共有69套165至252平米奢华三房及四房公寓。位于江苏路近华山路,坐拥卓越的地理位置,周边交通便捷,处于上海市中心传统高端豪宅地段。
参考报价
房间 面积(M²) 装修 年租月租金(RMB)
2+1房 165 奢华 4.5万起
3+1房 252 精致 5.5万起
公寓信息
套房数量: 69套
开业时间: 2025年
周边商圈: 南京西路、静安寺
附近地铁: 2/11号线江苏路站
机场距离: 虹桥机场10km、浦东机场49km
看房预约:15921786368
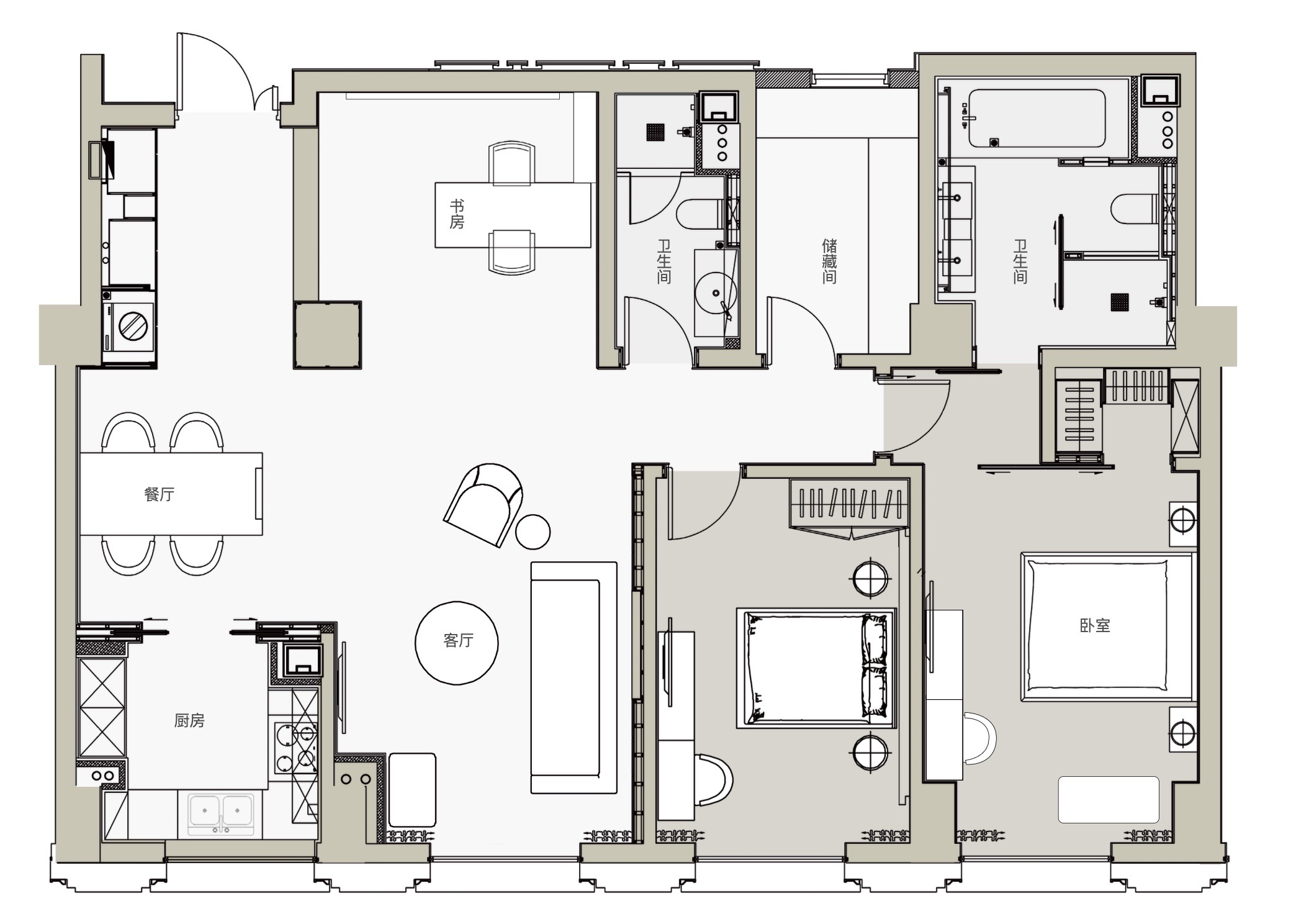
2+1房户型:







3+1房户型:





设施
拥有极具仪式感的入户落客区、奢华的公寓大堂。房间装修奢华,配备有全屋地暖、新风系统。标准配置:全套进口家电设备、斐雪派克燃气灶、嘉格纳烤箱&蒸箱、嘉格纳橱柜一体式冰箱、东芝洗衣机&烘干机、唯宝卫浴系统、汉斯格雅浴室龙头、大金空调、丹佛斯地暖等。

服务
宽带WiFi、每周2次打扫1次换洗布草、健身房及公区使用、24小时客户及安保服务。



